3 Bedroom
3 Bathroom
2,000 - 2,500 ft2
Raised Bungalow
Central Air Conditioning
Forced Air
$1,664,998
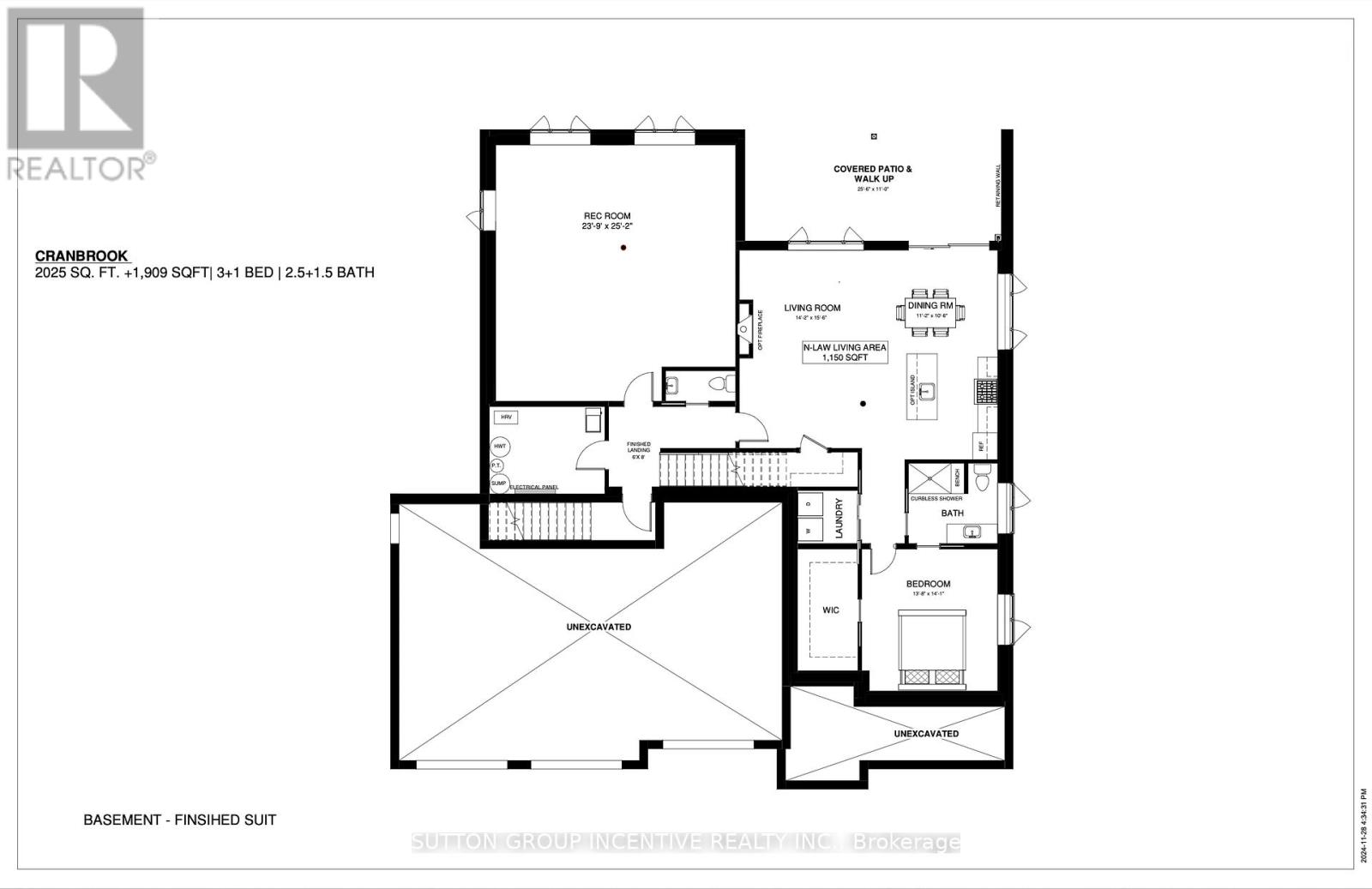
An exceptional opportunity to build your custom estate home on one of three premium rural ravine lots in the highly desirable community of Midhurst. Opportunities of this calibre are rare, offering the perfect blend of privacy, space, and convenience, just minutes to Barrie, schools, and everyday amenities. Each lot features a ravine setting backing onto Environmental Protection (EP) lands, providing enhanced privacy and a beautiful natural backdrop.These properties are offered as design-build opportunities with a reputable local builder with over 30 years of experience. The builder has written authorization from the landowner to market and advertise proposed homes for sale, and any agreement of purchase and sale will be conditional upon the builder successfully securing the Buyer's selected lot. Conceptual floorplans and renderings are provided for illustrative purposes and have been professionally priced using standard luxury builder finish selections. Renderings may depict optional or upgraded features not included in the base price. Buyers may select from the builder's portfolio of homes, customize an existing plan, or bring their own plans to be reviewed and priced. A fully integrated design process is available, including an in-house BCIN-qualified architectural designer and interior designer, ensuring a seamless experience from concept to completion. Model homes are available for viewing. Lots may also be purchased separately, subject to availability. Taxes not yet assessed. Municipal address not yet assigned.If you've ever considered building, this may be the right time to start the conversation. The custom home process often begins months before construction, and exploring your options now can make all the difference. Whether you're thinking about a spring build, planning for the future, or simply curious what's possible, feel free to reach out to see if a custom build could be the right fit for you - now or sometime down the road. (id:55460)
Property Details
|
MLS® Number
|
S12878652 |
|
Property Type
|
Single Family |
|
Community Name
|
Midhurst |
|
Equipment Type
|
Water Heater |
|
Parking Space Total
|
9 |
|
Rental Equipment Type
|
Water Heater |
Building
|
Bathroom Total
|
3 |
|
Bedrooms Above Ground
|
3 |
|
Bedrooms Total
|
3 |
|
Appliances
|
Water Heater |
|
Architectural Style
|
Raised Bungalow |
|
Basement Development
|
Unfinished |
|
Basement Type
|
N/a (unfinished) |
|
Construction Style Attachment
|
Detached |
|
Cooling Type
|
Central Air Conditioning |
|
Foundation Type
|
Concrete |
|
Half Bath Total
|
1 |
|
Heating Fuel
|
Propane |
|
Heating Type
|
Forced Air |
|
Stories Total
|
1 |
|
Size Interior
|
2,000 - 2,500 Ft2 |
|
Type
|
House |
Parking
Land
|
Acreage
|
No |
|
Sewer
|
Septic System |
|
Size Depth
|
229 Ft ,8 In |
|
Size Frontage
|
98 Ft ,4 In |
|
Size Irregular
|
98.4 X 229.7 Ft |
|
Size Total Text
|
98.4 X 229.7 Ft |
Rooms
| Level |
Type |
Length |
Width |
Dimensions |
|
Main Level |
Primary Bedroom |
4.32 m |
4.52 m |
4.32 m x 4.52 m |
|
Main Level |
Bedroom 3 |
3.33 m |
3.76 m |
3.33 m x 3.76 m |
|
Main Level |
Bedroom 2 |
4.27 m |
3.2 m |
4.27 m x 3.2 m |
|
Main Level |
Great Room |
4.32 m |
4.04 m |
4.32 m x 4.04 m |
|
Main Level |
Dining Room |
3.66 m |
4.04 m |
3.66 m x 4.04 m |
|
Main Level |
Kitchen |
4.27 m |
3.96 m |
4.27 m x 3.96 m |
https://www.realtor.ca/real-estate/29465969/part-4-plan-51r-45070-part-of-lot-19-concession-2-road-springwater-midhurst-midhurst
SUTTON GROUP INCENTIVE REALTY INC.
241 Minet's Point Road, 100153
Barrie,
Ontario
L4N 4C4
(705) 739-1300