322 - 2020 Bathurst Street Toronto, Ontario M5P 0A6

1 Bedroom 1 Bathroom 0 - 499 ft2
Central Air Conditioning, Ventilation System Forced Air

$399,999

Maintenance, Heat, Common Area Maintenance, Insurance

$538.04 Monthly

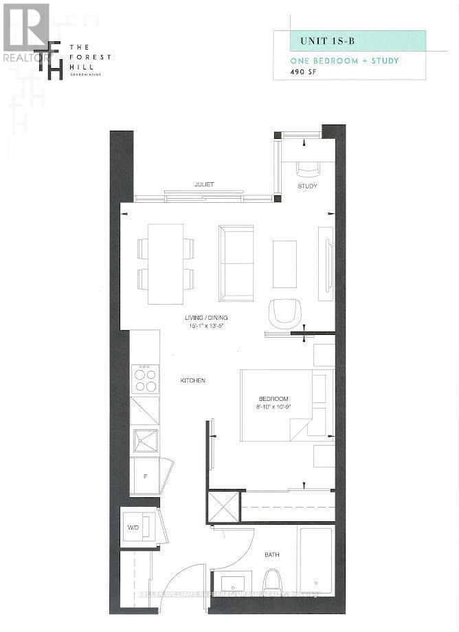
INCLUDES PARKING, LOCKER AND DIRECT UNDERGROUND ACCESS TO FOREST HILL TTC STATION. Upscale Forest Hill Condominium by CentreCourt Developments Inc. offers stylish living in a boutique mid rise building in one of Toronto's most desirable growth corridors. Situated at Bathurst and Eglinton, the property is steps to dining, shopping, grocery stores, incredible schools, Yorkdale Mall, and Forest Hill TTC Station (with direct access from the lobby) and seamless access to Allen Road and Highway 401. The 1 bedroom + den unit features 9-foot ceilings and floor-to-ceiling windows, ensuring a bright, open living space that appeals to tenants and end-users alike. The modern kitchen is equipped with premium stainless steel appliances including a build-in microwave, fridge, freezer, dishwasher, and wine fridge alongside new washer and dryer. Sleek laminate floors run throughout, offering both style and low-maintenance durability. Includes one locker and one parking space. Water, hot water and electricity have meters for each unit. Residents also enjoy access to an impressive rage of amenities, including a full fitness centre, yoga room BBQ terrace, party room, and guest suite features that drive higher rental demand and retention. With internet included, premium finishes, and a location poised for major appreciation thanks to direct LRT access, this condo offers investors the perfect combination of strong rental potential and long-term capital growth. (id:55460)

Property Details

MLS® Number C12857828
Property Type Single Family
Community Name Humewood-Cedarvale
Amenities Near By Place Of Worship, Public Transit, Schools
Community Features Pets Allowed With Restrictions
Features Elevator, Balcony, Carpet Free
Parking Space Total 1

Building

Bathroom Total 1
Bedrooms Above Ground 1
Bedrooms Total 1
Amenities Security/concierge, Exercise Centre, Party Room, Separate Heating Controls, Separate Electricity Meters, Storage - Locker
Appliances Oven - Built-in, Range, Cooktop, Dishwasher, Dryer, Microwave, Oven, Washer, Wine Fridge, Refrigerator
Basement Type None
Cooling Type Central Air Conditioning, Ventilation System
Exterior Finish Aluminum Siding, Concrete
Fire Protection Alarm System, Security Guard, Security System, Smoke Detectors
Heating Fuel Natural Gas
Heating Type Forced Air
Size Interior 0 - 499 Ft2
Type Apartment

Parking

Underground
Garage

Land

Acreage No
Land Amenities Place Of Worship, Public Transit, Schools

Rooms

Level Type Dimensions
Main Level Kitchen 3.75 m x 1.52 m
Main Level Dining Room 4.11 m x 4.51 m
Main Level Family Room 4.11 m x 4.51 m
Main Level Den Measurements not available
Main Level Primary Bedroom 3.28 m x 2.72 m
Main Level Bathroom 1.51 m x 2.59 m

https://www.realtor.ca/real-estate/29441986/322-2020-bathurst-street-toronto-humewood-cedarvale-humewood-cedarvale


INGRID MENNINGA
Salesperson

(416) 572-1016
KELLER WILLIAMS REFERRED URBAN REALTY
156 Duncan Mill Rd Unit 1
Toronto, Ontario M3B 3N2

(416) 572-1016
(416) 572-1017
www.whykwru.ca/

Your Favourites

 

No Favourites Found

 

Back to top