15 - 1940 Ironstone Drive Burlington, Ontario L7L 0E4
$1,179,000
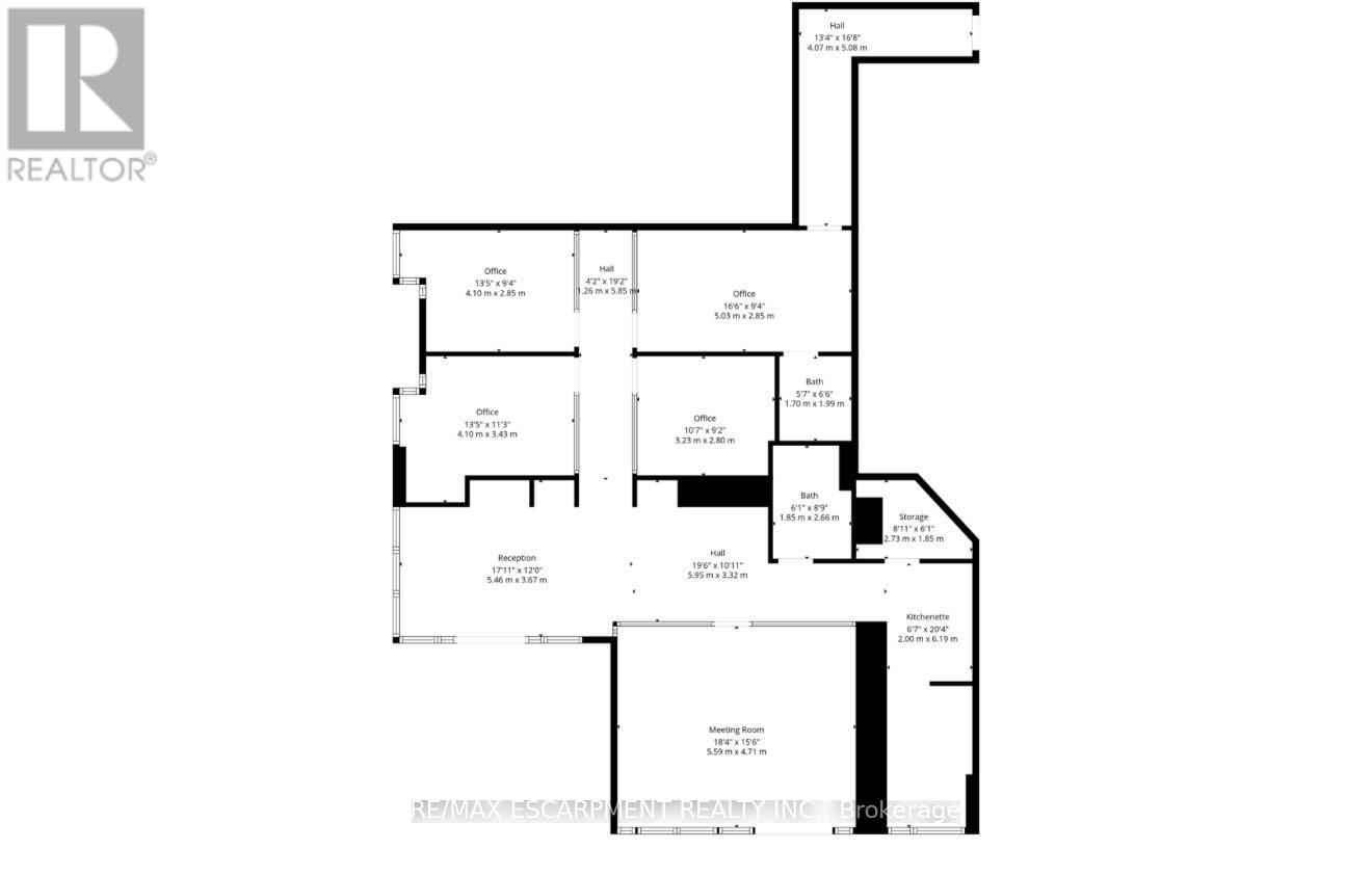
Prime commercial opportunity in a highly sought-after location! This professional office unit, currently occupied by Tangri Law Firm, is ideally situated on the corner of 1940 Ironstone Drive in the heart of Burlington, offering excellent visibility and convenient access right on Appleby Line. The unit features a well-designed layout with four private offices, a spacious boardroom, two washrooms, and a functional kitchenette perfect for a wide range of professional uses. Five separate entrances provide added flexibility, accessibility, and potential for multiple access points or division of space. Fronting onto Appleby Line, this unit benefits from strong exposure and high traffic flow, making it an ideal location for businesses seeking both presence and convenience. Ample parking and proximity to major highways, shopping, and amenities further enhance the appeal. A turnkey space in a prime commercial corridor perfect for law firms, accounting offices, medical professionals, or other service-based businesses. (id:55460)
Business
| Business Type | Retail and Wholesale |
| Business Sub Type | Retail misc. |
Property Details
| MLS® Number | W12900566 |
| Property Type | Retail |
| Community Name | Uptown |
Building
| Appliances | Blinds |
| Cooling Type | Fully Air Conditioned |
| Heating Type | Other |
| Size Interior | 1,916 Ft2 |
| Type | Retail |
| Utility Water | Municipal Water |
Land
| Acreage | No |
| Zoning Description | Ucr1-388 |
https://www.realtor.ca/real-estate/29492296/15-1940-ironstone-drive-burlington-uptown-uptown
2180 Itabashi Way #4b
Burlington, Ontario L7M 5A5
(905) 639-7676
(905) 681-9908
www.remaxescarpment.com/
























