101 - 265 Yorkland Boulevard Toronto, Ontario M2J 1S5
$33 / ft2
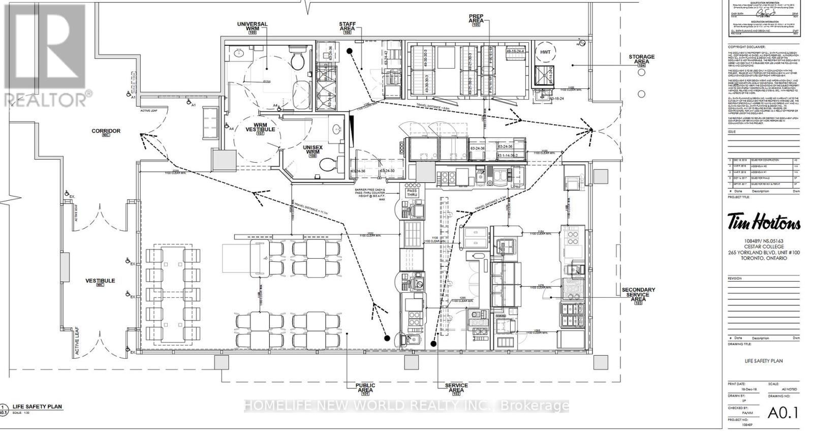
Former Tim Hortons location at 265 Yorkland Road now available for lease. This fully built-out retail unit comes equipped with complete restaurant infrastructure, including high-capacity hydro service, city-approved grease trap system, walk-in cooler and freezer, and a water filtration system-ideal for a seamless food operation setup. The functional layout is illustrated in the listing images.Strategically located with excellent access to Don Mills subway station, Fairview Mall, and major routes such as Highway 404, Don Valley Parkway, and Sheppard Avenue, the property benefits from outstanding connectivity. Surrounded by residential condo developments and established communities, the area offers strong foot traffic and visibility.In addition to restaurant use, the space is well-suited for a variety of retail or commercial applications, including photo studios, financial institutions, professional offices, and service-based businesses. A versatile opportunity in a high-demand location. (id:55460)
Property Details
| MLS® Number | C13032222 |
| Property Type | Retail |
| Community Name | Henry Farm |
| Features | Elevator |
Building
| Cooling Type | Fully Air Conditioned |
| Heating Fuel | Natural Gas |
| Heating Type | Forced Air |
| Size Interior | 1,471 Ft2 |
| Utility Water | Municipal Water |
Land
| Acreage | No |
| Zoning Description | Retail |
https://www.realtor.ca/real-estate/29642763/101-265-yorkland-boulevard-toronto-henry-farm-henry-farm
Broker
(416) 490-1177
201 Consumers Rd., Ste. 205
Toronto, Ontario M2J 4G8
(416) 490-1177
(416) 490-1928
www.homelifenewworld.com/































